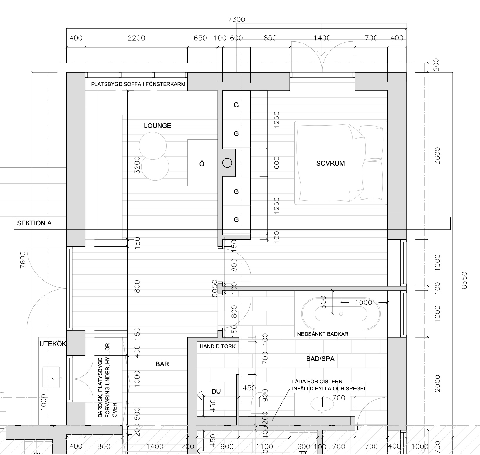
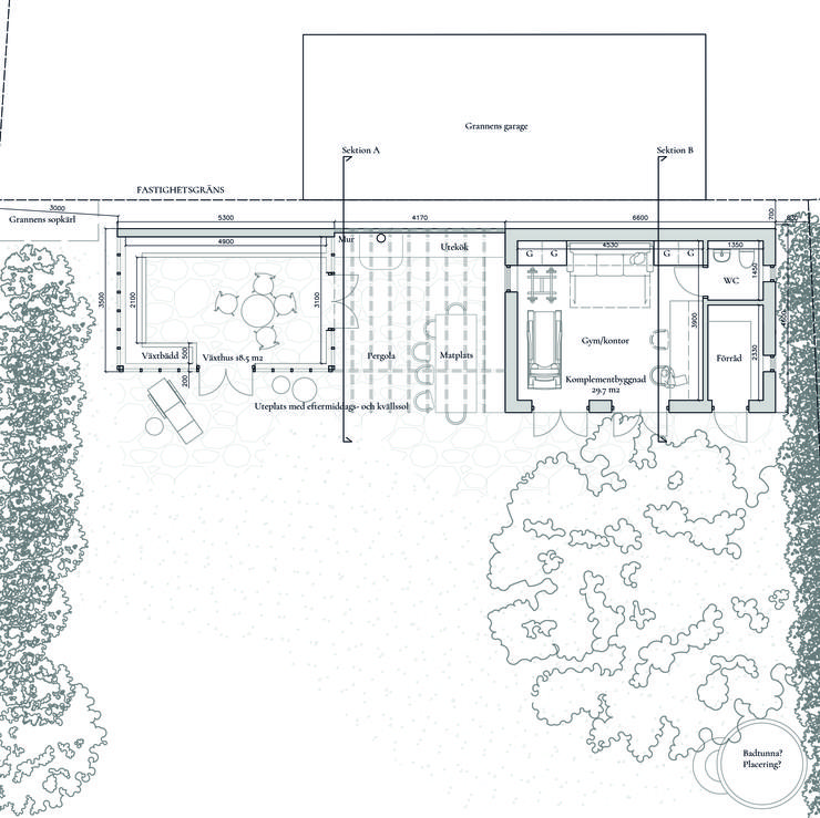
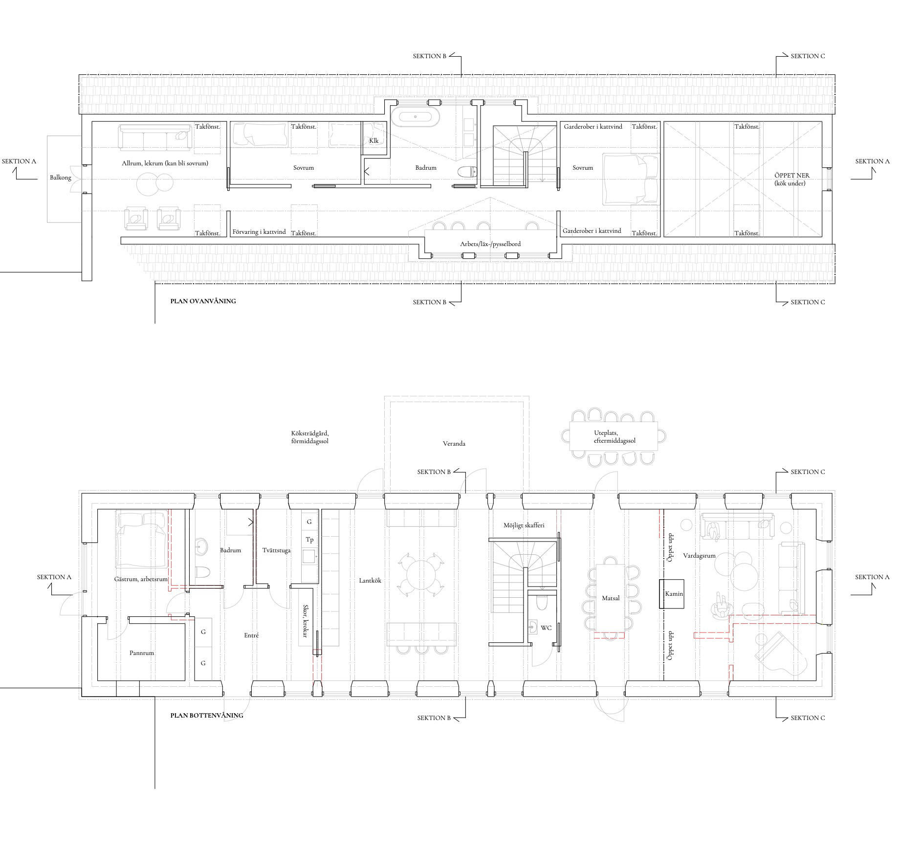
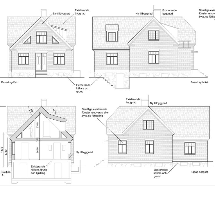
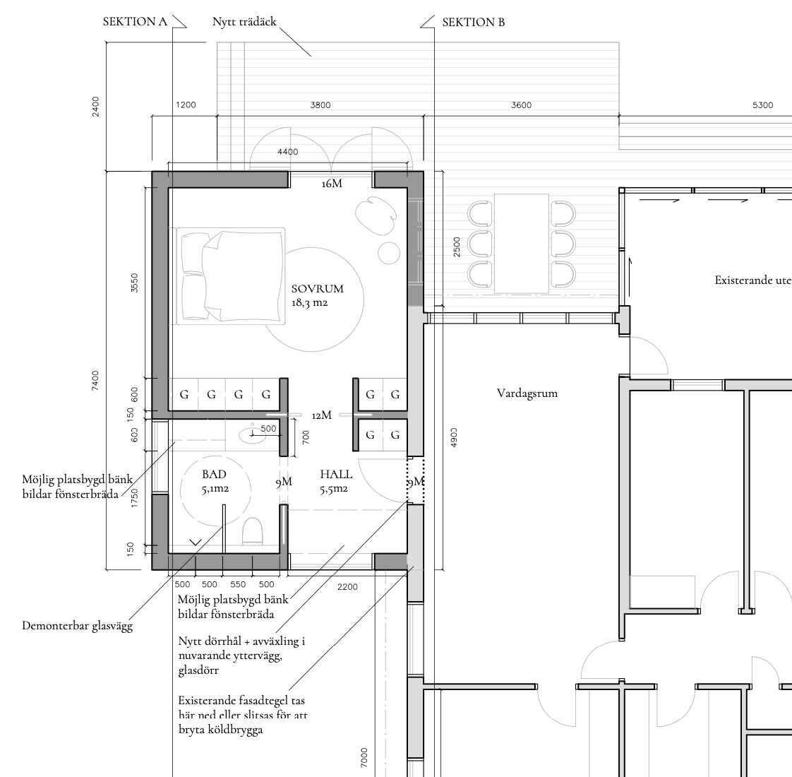
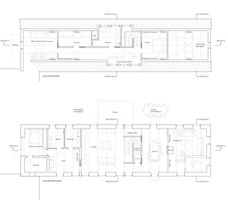
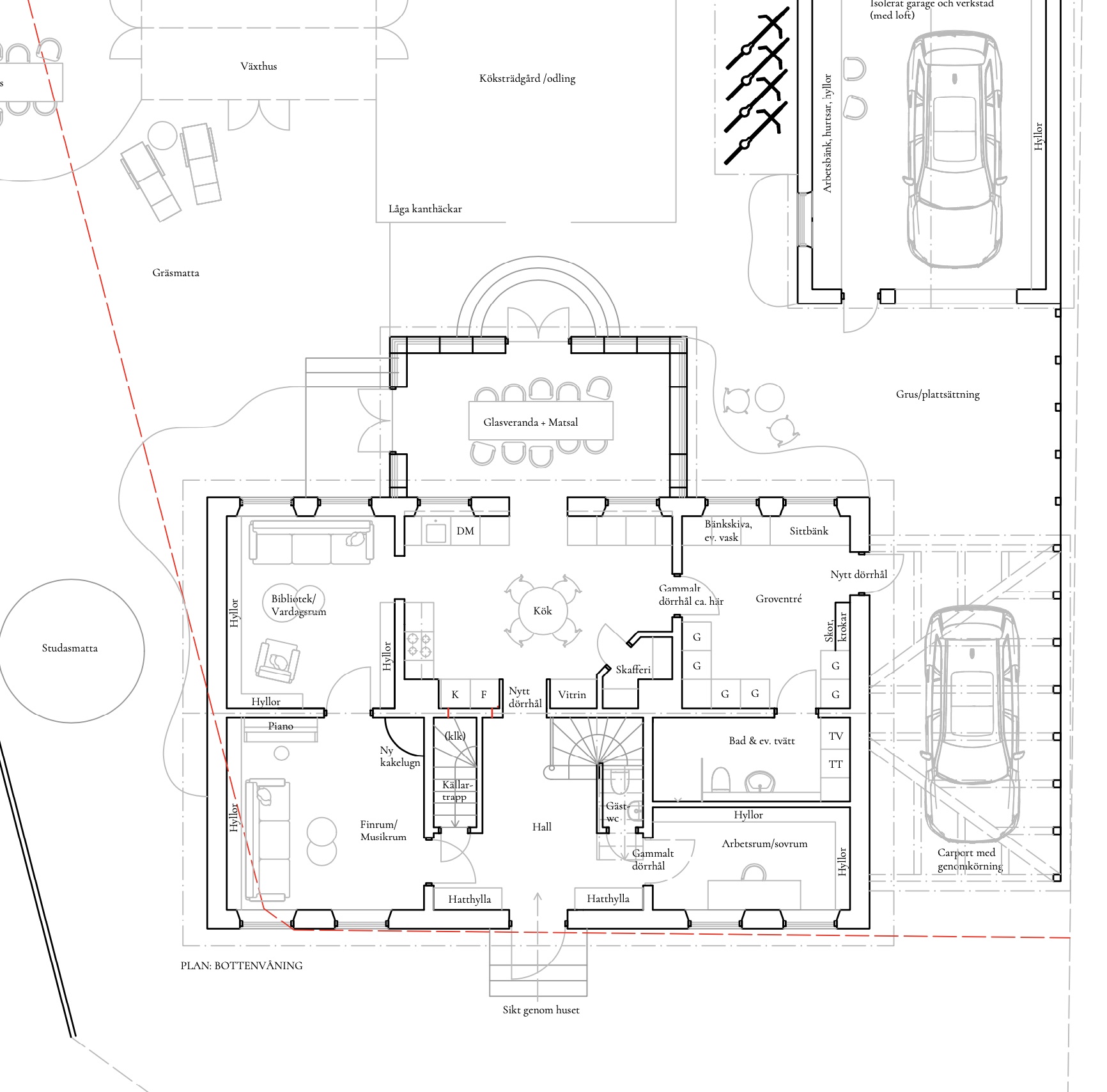
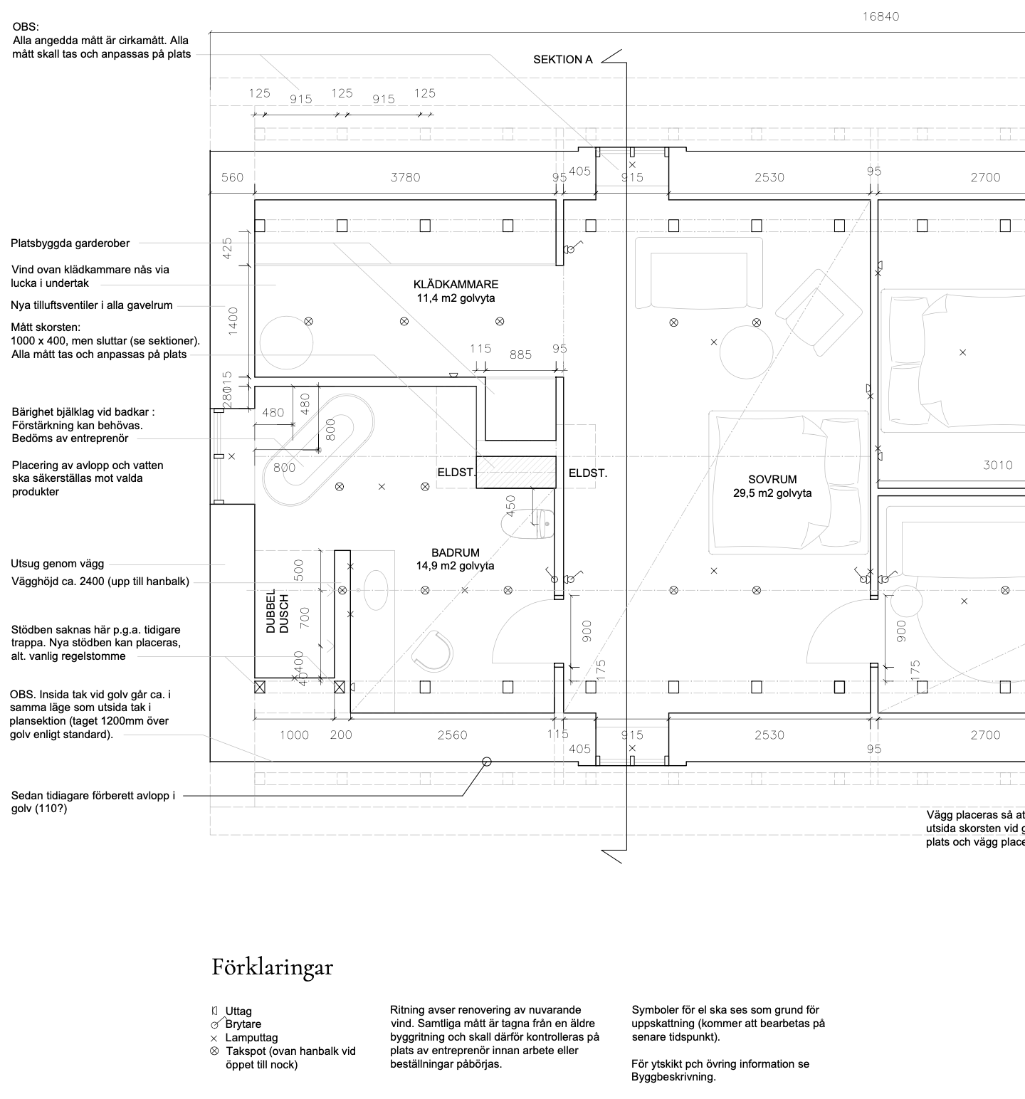
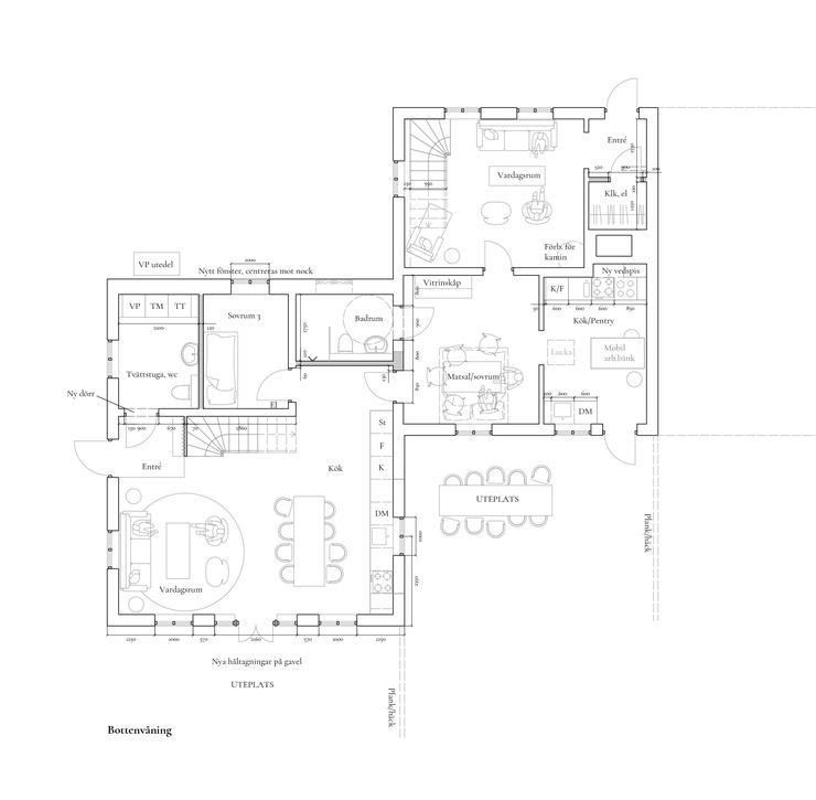
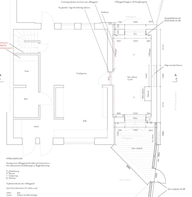
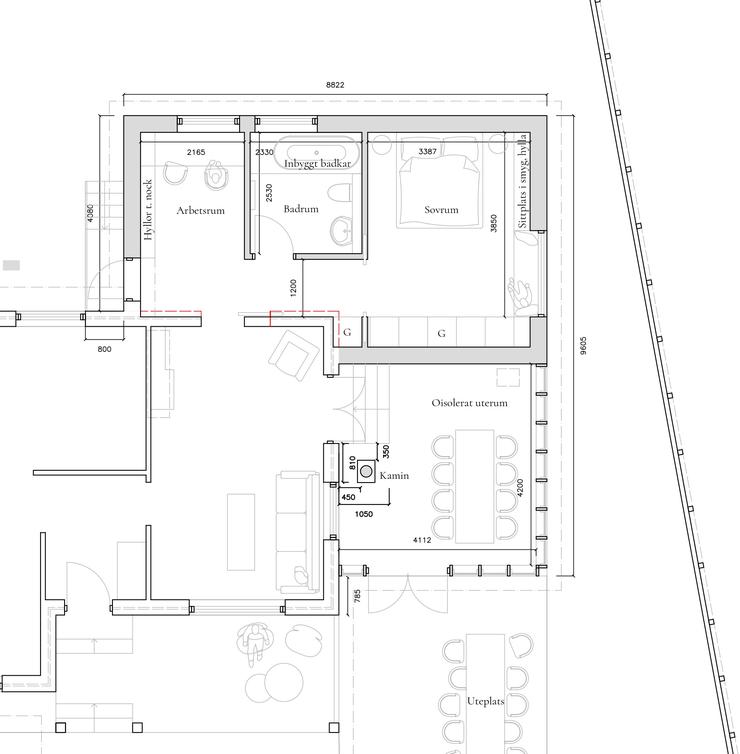
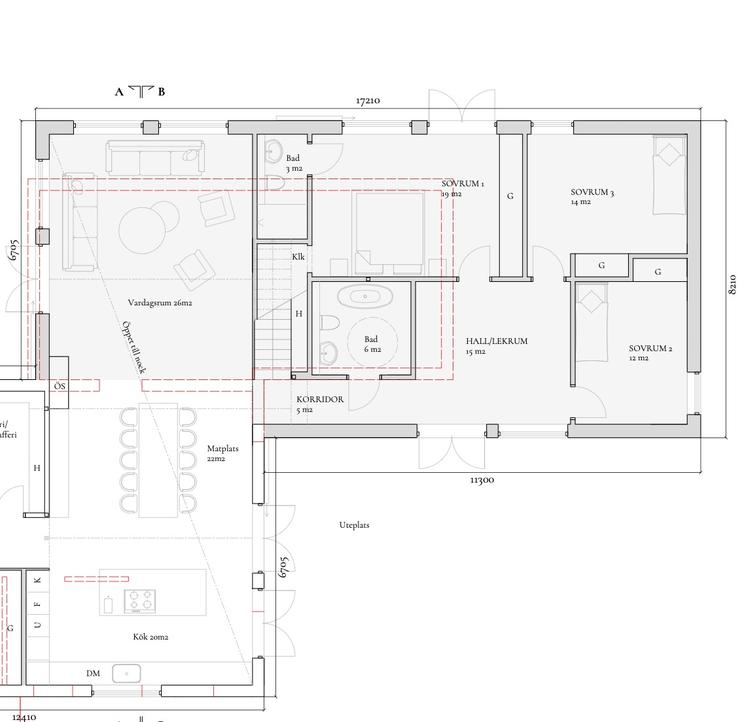
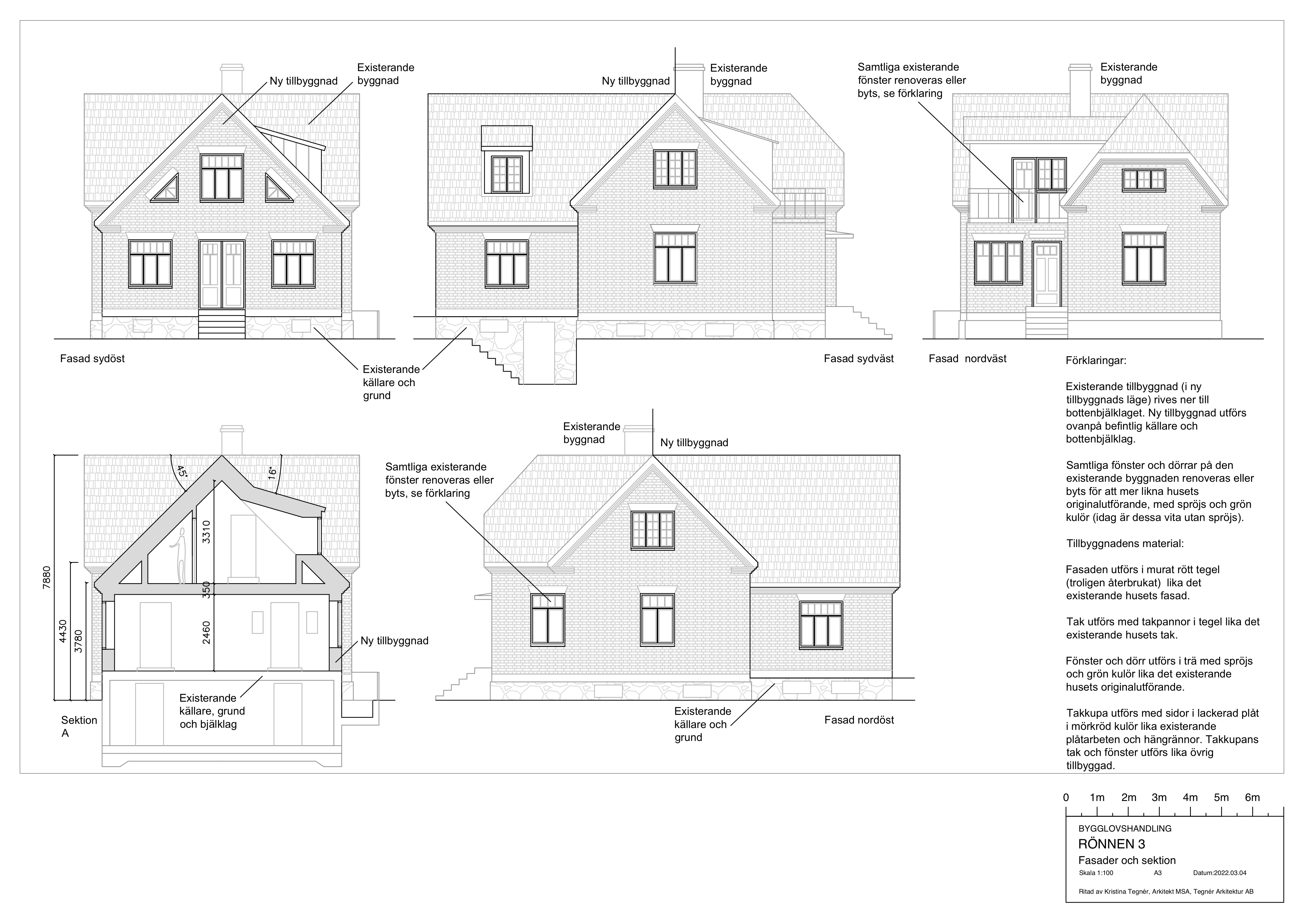
TEGNÉR ARKITEKTUR arbetar med nybyggnationer, äldre byggnader och byggnadsvård. Vi brinner särskilt för hållbara metoder och naturmaterial, men tar oss an uppgifter av alla slag. Vi värdesätter en fin kommunikation med kunden och ger erfaren, stilsäker rådgivning i ett projekts alla faser.


TEGNÉR ARKITEKTUR AB drivs av Kristina Tegnér, Arkitekt MSA / SAR, med bas på landsbygden utanför Lund i Skåne. Sedan sin examen från Royal Danish Academy of Architecture, Design & Conservation 2012 har Kristina arbetat som arkitekt i Sverige, Danmark och Skottland med projekt av de flesta storlekar och typer. Sofia Hesselstrand är arkitekt utbildad vid KTH och har även läst till inredningsarkitekt på Konstfack. Hon har en stor kunskap kring snickeri, inredning och hemmets arkitektur. Filip Rahmn har läst till arkitekt på LTH och har ett särskilt intresse för nytolkningar och bevarande i kulturhistoriskt värdefulla miljöer. Intresset för byggnadsvård och materialitet finns som en röd tråd i kontorets projekt och resulterar i arkitektur av hög kvalité som tål tidens tand. Kontoret är stolta medlemmar i BEVIS.


VI HJÄLPER ER GÄRNA MED ERT PROJEKT, OAVSETT STORLEK. VARMT VÄLKOMMEN MED DIN FÖRFRÅGAN!


KONTAKT



TEGNÉR ARKITEKTUR AB

+46 733 53 06 76

info@tegnerarkitektur.se

Org.no. 559358-5945